Rif: IMMO-106764957
MILANO
MILANO - zona Crescenzago
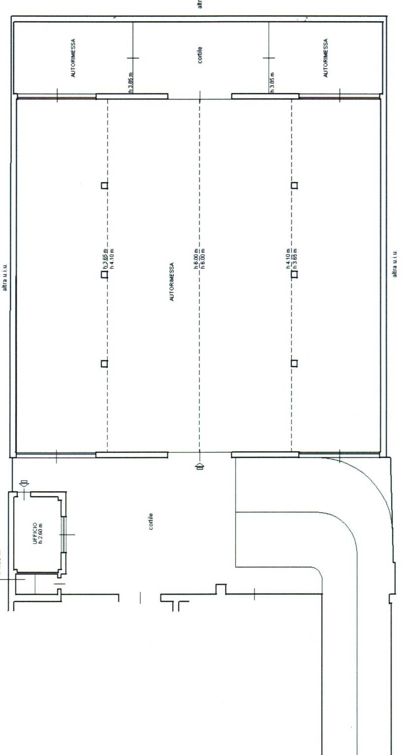
ZONA CRESCENZAGO OCCUPATO, PER INVESTIMENTO Proponiamo in vendita capannone di 420 mq. ca., composto da un unico ambiente, oltre ad un ufficio di 12 mq, bagno e 2 ripostigli. Tenuto bene. Passo carraio. Attualmente affittato ad una carrozzeria ad un canone annuo di Eu. 12.240,00. Scadenza contratto 31/03/2029.
La zona è ricca di attività commerciali di vario genere, scuole di ogni ordine e grado, palestre, uffici pubblici, mezzi di trasporto di superficie e metropolitana.
Per questa o altre soluzioni contattare IMMOBILIARE PUNTO VERDE, via Padova 181 02/27208666, mail orari ufficio: lunedì- venerdì dalle ore 9.00 alle ore 12.30 e dalle ore 15.00 fino alle ore 20.00; sabato dalle ore 9.00 alle ore 12,30. Immobiliare Punto Verde mette a disposizione dei propri clienti la sua professionalità e competenza in un momento così importante come la scelta della tua nuova casa. Questo impegno è formalizzato in: •tutti i dati della scheda immobile sono reali e certificabili. Innanzitutto lo è la superficie commerciale definita in accordo al protocollo di calcolo dell'Osservatorio del Mercato Immobiliare dell'Agenzia delle Entrate (riferimento: determinazione consistenza); •la documentazione dell'immobile è completa e visionabile. Nello specifico sono disponibili su richiesta: visura catastale, planimetria catastale, certificazione energetica e, solo per le vendite, visura ipotecaria; •in qualità di Operatore Professionale si assisterà il cliente dalle verifiche preliminari dell'immobile sino alla stipula dell'atto notarile o del contratto di locazione, in modo da essere al suo fianco fino al completamento dell'operazione immobiliare.
La zona è ricca di attività commerciali di vario genere, scuole di ogni ordine e grado, palestre, uffici pubblici, mezzi di trasporto di superficie e metropolitana.
Per questa o altre soluzioni contattare IMMOBILIARE PUNTO VERDE, via Padova 181 02/27208666, mail orari ufficio: lunedì- venerdì dalle ore 9.00 alle ore 12.30 e dalle ore 15.00 fino alle ore 20.00; sabato dalle ore 9.00 alle ore 12,30. Immobiliare Punto Verde mette a disposizione dei propri clienti la sua professionalità e competenza in un momento così importante come la scelta della tua nuova casa. Questo impegno è formalizzato in: •tutti i dati della scheda immobile sono reali e certificabili. Innanzitutto lo è la superficie commerciale definita in accordo al protocollo di calcolo dell'Osservatorio del Mercato Immobiliare dell'Agenzia delle Entrate (riferimento: determinazione consistenza); •la documentazione dell'immobile è completa e visionabile. Nello specifico sono disponibili su richiesta: visura catastale, planimetria catastale, certificazione energetica e, solo per le vendite, visura ipotecaria; •in qualità di Operatore Professionale si assisterà il cliente dalle verifiche preliminari dell'immobile sino alla stipula dell'atto notarile o del contratto di locazione, in modo da essere al suo fianco fino al completamento dell'operazione immobiliare.
Consistenze
| Descrizione | Superficie | Sup. comm. |
|---|---|---|
| Principali | ||
| Capannone - piano interrato | 419 Mq | 419 Mqc |
| Totale | 419 Mqc | |






